絕緣電線電纜單根垂直燃燒試驗裝置介紹
FTT的絕緣電線電纜單根垂直燃燒試驗裝置是為了評估在1kw預混合型火焰使用條件下單根垂直絕緣電線電纜的阻燃性能。
?
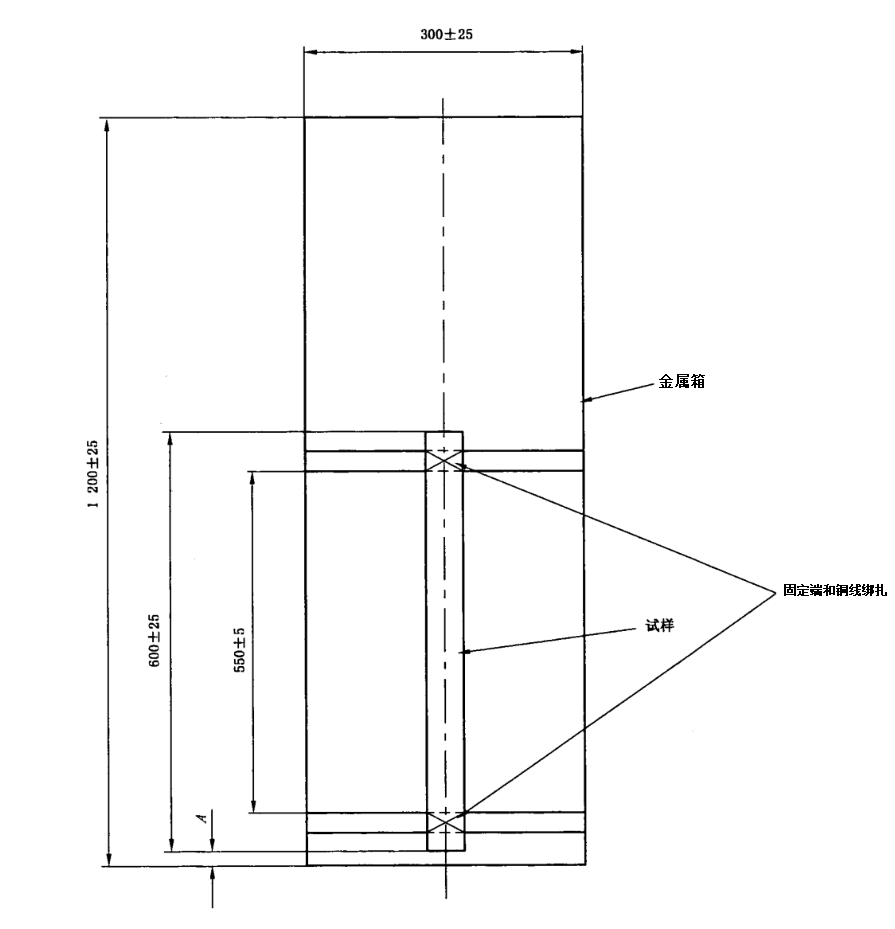
試驗方法將一根60cm長的試樣垂直固定在前壁開通的金屬箱內,固定端上部和下部距離在550mm,固定試樣時使試樣下端距離金屬箱底面約50mm。火焰長度175mm的丙烷燃燒器從距試樣的上部固定端450mm的位置上火焰錐與電纜以45度角接觸。用鋒利的物體按壓電纜表面,如果彈性表面在某點變為脆性(粉化)表面,則表明該點既是炭化部分起始點。如果炭化部分距離固定端下部不超過50mm,則電線電纜通過試驗。
?

?
FTT的
絕緣電線電纜單根垂直燃燒試驗裝置作為一個完整的系統提供,包括所有必要功能,使用安全。它符合IEC 60332-1-2(1kW預混合火焰規程)和IEC 60332-1-3(火焰熔滴/顆粒測定規程)。
?
絕緣電線電纜單根垂直燃燒試驗裝置包含:
- 臺式開放式測試屏幕
- 水平試樣支架
- 符合IEC 60695-11-2標準的點火燃燒器,角度可從90°調整至45°,并具有氣體安全系統
- 電子火花點火
- 帶安全聯鎖,氣體和空氣流量調節的控制單元
- 帶有氣體和空氣質量流量控制器的分流器面板,當檢測到火焰時,可精確控制流量